找回密码
 注册会员

QQ登录

只需一步,快速开始

扫一扫,访问微社区

查看: 414|回复: 0

盘类零件数控车削工艺分析与加工实例

[复制链接]
发表于 2010-10-22 00:31:47 | 显示全部楼层 |阅读模式

马上注册,结交更多好友,享用更多功能,让你轻松玩转磨削论坛

您需要 登录 才可以下载或查看,没有账号?注册会员

×

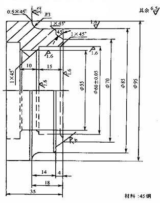
如图所示带孔圆盘工件,材料为45钢,分析其数控车削工艺。

1.零件图工艺分析

如图所示工件,该零件属于典型的盘类零件,材料为45钢,可选用圆钢为毛坯,为保证在进行数控加工时工件能可靠的定位,可在数控加工前将左侧端面、Φ95㎜外圆加工,同时将Φ55㎜内孔钻Φ53㎜孔。

2.选择设备

根据被加工零件的外形和材料等条件,选定Vturn-20型数控车床。

3.确定零件的定位基准和装夹方式

(1)定位基准 以已加工出的Φ95㎜外圆及左端面为工艺基准。
(2)装夹方法 采用三爪自定心卡盘自定心夹紧。

4.制定加工方案

根据图样要求、毛坯及前道工序加工情况,确定工艺方案及加工路线。

工步顺序:

(1)粗车外圆及端面
(2)粗车内孔
(3)精车外轮廓及端面
(4)精车内孔

5 h8 C) C% p' z2 A

' \6 Q: E5 V1 B# I7 A. R

带孔圆盘

- t9 [2 q2 H& M( Z

5.刀具选择及刀位号

选择刀具及刀位号如图。

! c' b/ V% Q! e" K( I3 Z( u+ x3 P

0 `/ }& m, L% ^/ h# Y

刀具及刀位号

) e) q: w$ D, x- L

将所选定的刀具参数填入表1带孔圆盘数控加工刀具卡片中。

6 v, Y1 f% U+ F* ]9 X

表1   带孔圆盘数控加工刀具卡片

, N D" s6 H! @$ l9 W1 V; a

 

" l/ O& d% v* T$ \5 ^) L; v

& s, i5 j1 d& T+ p' \" ?

2 _' y# ^, V2 @* g# q; w/ T0 J' |3 t6 k5 M, k: m7 l0 C: `2 B9 i2 G& V. k4 C) ]; c/ ~/ B& ~6 T7 l& w& n y/ g- ?* ^0 {3 N2 @% M ]" y+ z: s; @+ q( C' g& h2 c" a) ]( {9 F$ C- n; b' T: s+ T; ]* L* k) H0 {- Z# @$ a( P: t8 g5 ]0 U' z& r4 A7 v/ m6 v' O z" [9 N0 N* p5 m9 e, u& x, ^" ]( s8 K7 e$ U& r2 s$ k" W. a$ L& [5 ?) M1 X& ` Z2 s' p, F% T" ~1 V' e. l G, b/ Q y# A @& k6 b N2 P, g+ w! P! p0 [2 j! | x0 S1 l9 P' Y- O& }8 @" [: q9 j# ^8 `0 D( x+ g+ V0 K1 F) r9 s7 F D( m- W" L6 `7 t# M) K9 a6 m2 t% V6 j/ S* Y4 {* A$ W9 p: M d$ Z3 G* ^' X) E8 C/ r' m* O6 l) {% C* K" J5 K" r; F" h2 F# X& C; E7 W5 |6 Z& h5 a g5 q+ z. m4 a K/ }1 c8 y7 i& Y0 Z4 J3 a9 X' |- S+ Z K8 I2 w4 E. I! [' B0 W/ T. S& }2 G: e: v/ V+ M2 m. s' V$ F t3 Z7 m" P# ?6 }9 ]6 C* J/ Q9 L) a9 o6 C' ^$ l$ ]3 S" d1 d9 a' @ K' m. R3 a4 T3 {+ k+ r2 j$ F' ^) x/ x+ W) I7 G n% Z% V/ x% \3 I h2 Z% H J' y1 A; ~% u8 S& V2 g$ Q! ?( y( h' f* N0 c% [( s( ~; A( i$ M+ X0 j9 U+ o+ Z g; Q: ^! ~: \. I$ L3 F, p( c3 I& g0 I. _9 G# L+ X% q3 n+ b$ Y [( l: }9 z( e; B L. ]5 z8 x4 a3 P& K; R3 m( x2 g* r; T {; ]1 t, @& @/ S9 T/ O7 H) `. j5 ~& O. B- F3 V; e8 @& B0 c; b$ ]* X) X8 o9 J/ a; Y! H; A) A5 P: R% L, ~: {4 L3 l+ y8 j8 S4 d" W& w+ @ E4 D d* r: g$ n2 ?9 _7 K( D/ `3 a9 W! ~- D2 `* B' `4 g+ }/ ?. T) T! Q( ]. q* \& m) ^. r9 O$ H% _9 B8 P6 x- K9 c2 B, J% I+ h! y5 B. q! |' b0 o! `2 r( n2 s9 |5 L! `0 P8 b$ S2 V& x- Z( f2 {9 }2 b/ J- Y$ Y# z; }6 Q- r- s: o) K3 ?. [, p/ [" k! H+ j" e" Z# b- I G. B: y& [2 g: K% V- \) |$ v! s5 b1 l% k! C6 C3 a* q8 w( z5 s. O; X, r$ X" E2 d7 _$ e3 _! d# m" S( q0 F `) I
3 v# d4 k' w' g

产品名称或代号

& o; J; }/ p, z: ^8 U# [1 {

×××

$ Y) U2 w) ]" }: b, }, F- S5 l

零件名称

5 f+ N1 t* P2 q6 S* O3 O5 a

带孔圆盘

, N$ ?( s9 _; Q. u: w* ?7 E5 x) o

零件图号

5 C; F8 A2 t1 d: G/ l$ j5 Q

×××

1 Y8 H- `& Y8 o w

序号

+ l \: f. X3 f+ ?

刀具号

* G% u8 }) t# B( H1 E% }

刀具规格名称

' T9 Y3 m7 @9 _9 l1 Z

数量

' p6 {) }5 }- v

加工表面

/ q+ B8 o& i5 G- v5 C [0 j

备注

8 {& v( P6 K% P' D# |& p

1

, {. a' G, m( m

T01

1 c& A! l7 @8 `0 l

硬质合金外圆车刀

3 Q) V: `: Q7 J

1

5 ~8 {8 ]/ }5 b2 J6 p1 k

粗车端面、外圆

- `7 [4 P+ X$ u- i- R$ a- g* n

 

; [# l" k( N' D Q! O, p* ? h7 i: }

2

5 n& x. `0 Q) F

T04

5 S" @4 K6 M! p9 R# D% d2 o

硬质合金内孔车刀

' Q$ I& v% t3 n; h9 U

1

. K: a- c7 s+ S# U, A2 j

粗车内孔

# P6 I3 ]8 E4 T4 Q

 

" O. ?* F# z" C: h* ?

3

; E( C Z- Q: Y4 Y! g5 N

T07

5 i' o% g' H* y. j* ^

硬质合金外圆车刀

4 o z- h6 d/ D: U$ p, H! H

1

+ F6 |/ p& E) L, _( ?# Q

精车端面、外轮廓

6 H6 `; ~9 Z' r& L2 V

 

$ ?; J3 K6 K, |1 O/ h# ]/ n

4

J7 i& _' S! @

T08

$ ?& O/ [# W* b9 o7 ]: H( [8 d

硬质合金内孔车刀

y/ M; W* `/ J. r* o/ [8 [

1

' Z4 A# r K# s ^ X6 F, m: R

精车内孔

; `6 m2 s2 B2 P. A4 ^

 

" y) c; }6 [) F# p9 e

编制

/ q& |! t+ w: H% f5 ^

×××

9 ]1 J2 e# I& X3 {, M+ r' R

审核

$ O6 b3 C. g- P( ~& h

×××

& p! A# X- j% C: U

批准

9 A2 W! g/ w' w% r" P& S+ a& S

×××

: g6 X* a+ A- P; {: R( |6 i8 S, L

共  页

0 j6 E y" z: A* B* S/ H

第  页

                       

- {: O9 K5 Z& i# K

   6.确定切削用量(略)

6 f# H5 q/ _# Y3 e- v3 s% B

7.数控加工工艺卡片拟订

# L8 U( ]2 {, E3 B3 P: s! O

    以工件右端面为工件原点,换刀点定为X200、Z200。数控加工工艺卡片见表2。

$ F+ E" `7 R7 s T5 g- K/ H

表2  带孔圆盘的数控加工工艺卡片

" S$ }) W# I1 F* ^: C+ }

 

/ t5 I% u/ T( f5 a

* N% X6 ~1 ` N

4 S* v* ~1 T- M% X3 O* `6 d- d! i( ]3 ^& L. F) o9 z! l" A* K B! ]. o' X' [- I4 Y1 Y+ @- ~: ?1 X( o5 }' Y( X7 Z$ q* x$ A& B) Z3 M. U+ F' s N2 |8 r7 o/ _6 y' z, U! Q& Y9 H/ I( f' {5 b, m& G: t; E! P3 x _1 ?# w9 M& c% k; d( Y: G0 y# r h8 k# h; W+ t" \1 z5 _1 i. {! Z& i; w% ~. }' ?6 T P, z7 `, m- ~* ]& I) ]! U8 v& q' p6 T4 M8 k9 {) |7 q" l& y" i2 t% n% ]0 H Q6 I" b4 P1 j6 ]$ f9 `# L* C8 b8 S: K9 w4 n0 ^: B) Y9 K2 {) \/ W& Q# l/ @2 T/ g4 a: j& ? D' y3 ]0 E. `+ G+ u( K) M9 k: Y9 l) i0 X. T% g( g" u* V% b: j1 M; N$ ^; n2 N3 ^3 g1 }% w$ N2 D& A" B. s- Q0 e. n$ h. r# H2 c+ m. ?' a, ^% V `4 L4 y( ?* y( N1 ~2 O7 I. w" \* n1 r; ]: ~: B4 y) w/ a! \7 ]4 N; @, F9 ?1 N& H8 h8 Q9 B9 u7 b/ }+ ?. T) H( a- k1 [, y6 O8 z8 ], A6 @- I$ C: }* k; W; j- M c! c9 y5 o5 I$ @5 ]5 s1 O1 F# i0 e" L$ V) d, j6 M; t4 Y; {- ]+ X+ a. T2 W+ B$ N" j! T/ b+ ^6 Q7 z/ r# F0 j) d0 M: r, v7 Z+ E- }% ^$ o$ r! W2 @0 U2 g. A8 m, o/ y/ q$ x) s ~% N- e5 L3 v6 j, F G; h2 u* L: E' W7 Q4 L' f- _1 g" P+ A, |9 j* q0 q \6 {" s: m; @" {0 t/ `4 e; y# A: ? E) a& F4 w$ y; z+ o! a4 n2 _' j$ k9 S3 D1 s3 J+ u1 ]. i9 g8 Y6 x9 b- Q) w3 s( G5 l8 j4 T2 j6 a ]" L: D8 O2 M% _* o- o% t3 G0 J4 z1 K/ t N O) I: U6 D6 Y$ T3 d; {9 m9 d; E. q9 B' j: C' z8 b- q+ j, p" I5 \+ k- F0 \+ A6 Z0 H: Q4 t J- i: ]3 S) W1 V' C. G* T( L4 v z5 o7 z: Z% X: U# ?& a! H2 Q1 O9 r1 e6 Z( b0 K$ X" L( w$ }/ {9 g/ L* Z |; V$ V4 z7 r8 ~3 B( J* Y# m) `$ f: w7 t) S4 j; F5 J$ B/ A/ {% z0 Y2 ~4 @" h3 a# ]3 I6 J W2 [( y B: Q6 h& M0 q3 e3 L6 C$ l* T! t" X! e* I* R5 ?
, q! c6 L. |0 X7 U) k% p

单位名称

6 r* h4 b. T6 Z. u

×××

/ W5 @$ c0 T. t/ ?! o' F! @

产品名称或代号

j' I7 r6 Q2 u

零件名称

# f4 ]( b! M. Y; X0 T$ B. ?

零件图号

' I* C5 c# O9 S

×××

/ ^4 F1 O! o* D' y7 H) V7 t( ^

带孔圆盘

) U. T) {- Z& t4 v) a5 l$ ^

×××

6 j$ `4 K, V1 [+ P

工序号

+ U( F$ V5 m0 L9 z

程序编号

2 f0 i/ B" {1 g% B$ q5 o

夹具名称

9 f+ O; V; o) O6 |; V' g

使用设备

9 M7 w* I7 V% M' J

车间

; u6 q3 J8 W, g- e, k

001

0 W6 R' J. T) g+ R+ n

×××

3 q% }1 S% B4 z; }

三爪卡盘

* W% h4 z' j `0 M- S5 n

Vturn-20数控车床

0 A' h9 ?4 k$ |+ X$ ?8 l0 I* g

数控中心

% a7 Q( S0 j _% Z) K2 C

工步号

1 e& y# o# D D: a

工步内容

8 H4 F% T! o% T6 Z( W2 d

刀具号

* J+ i2 I& I3 e0 u! Z

刀柄规格

8 y4 Q, t& _+ v$ @

/ mm

( W4 r& K' f5 [' s- f

主轴转速

$ x: a* o- q9 W1 x5 P

/r.min

) | Z* P- L' a

进给速度

. B `( B3 ?+ m# f8 j) ~1 j8 Y4 Q

/mm.min

" i6 o; }" p# u

背吃刀量

: Y7 c: ?) x c3 r+ d/ i

/ mm

& r" T0 j2 J3 ~3 q! Y$ N

备注

# F$ H2 y7 }8 r' b( B9 I2 o

1

# ^3 I8 a5 i/ E% k/ H

粗车端面

2 q8 C5 d4 n; @& f0 l2 A# [

T01

: {* c/ u) A' [

20×20

) v# Q4 B4 h$ x$ ]& h

400

' b" C7 f h! K; M2 v# ]# ]: v

80

! @) ~+ l6 s# d3 I! T% U& G6 l4 ^

 

% P. f5 [; a, o4 Q

 

6 n: ~" b3 `% m5 T- m: K3 t

2

$ `' f3 K5 W( ^+ C' k+ K/ Y

粗车外圆

& O& B T+ B: R/ d G

T01

" G0 k: z5 @9 i6 j" A

20×20

5 B2 {/ Y/ ?$ E# o; c

400

: K5 c/ q( {6 K, t- _" p

80

o2 @+ |9 V W( G# {/ b" j! x& k

 

3 X9 _$ ]$ q. s/ K! m5 S5 L3 u' @

 

4 b3 A* _/ t$ c0 \, o8 c- c

3

4 D1 b2 I$ S1 a& n% o3 n6 G

粗车内孔

! ?: E$ L" F t* \4 G$ O l

T04

, H- `7 J, W4 f! }

Φ20

5 f: C" d6 F. e- `+ w) R$ D

400

" v: f2 N8 S& @. w. q# x

60

. [) }! r1 r& R( d* _

 

! \" w6 e2 L+ e+ n. _ @' {( I- a' u

 

G$ t: t) E9 a V* C

4

2 q( w6 L4 [, g

精车外轮廓及端面

) i" ?: v) t T; a

T07

9 U/ J, J4 |- B- g* d

20×20

2 O9 O7 u& X$ s+ G( g* s0 E* F

1100

5 Y6 c4 h- i+ @5 P4 a2 N

110

: h0 G. v6 x4 n4 O9 u
您需要登录后才可以回帖 登录 | 注册会员

本版积分规则

中国磨床技术论坛
论 坛 声 明 郑重声明:本论坛属技术交流,非盈利性论坛。本论坛言论纯属发表者个人意见,与“中国磨削技术论坛”立场无关。 涉及政治言论一律删除,请所有会员注意.论坛资源由会员从网上收集整理所得,版权属于原作者. 论坛所有资源是进行学习和科研测试之用,请在下载后24小时删除, 本站出于学习和科研的目的进行交流和讨论,如有侵犯原作者的版权, 请来信告知,我们将立即做出整改,并给予相应的答复,谢谢合作!

中国磨削网

QQ|Archiver|手机版|小黑屋|磨削技术网 ( 苏ICP备12056899号-1 )

GMT+8, 2025-12-4 19:29 , Processed in 0.146685 second(s), 23 queries .

Powered by Discuz! X3.5

© 2001-2025 Discuz! Team.

快速回复 返回顶部 返回列表