找回密码
 注册会员

QQ登录

只需一步,快速开始

扫一扫,访问微社区

查看: 295|回复: 2

[求助] 这些东西怎么搞

[复制链接]
发表于 2014-2-18 22:50:14 | 显示全部楼层 |阅读模式

马上注册,结交更多好友,享用更多功能,让你轻松玩转磨削论坛

您需要 登录 才可以下载或查看,没有账号?注册会员

×
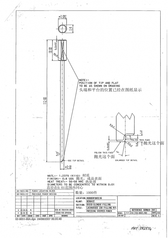
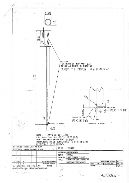
怎么搞  怎么弄  谁能加工 QQ1539666207
Piercing die punch-drawing_副本.jpg
Piercing pins_副本.jpg
发表于 2014-2-19 17:28:55 | 显示全部楼层
成型磨削,找有数控修整的外圆磨!
发表于 2014-2-20 16:39:16 | 显示全部楼层
先用无心磨磨好外形,再做夹具固定用平面磨来切二槽和修成型砂轮磨端面。
您需要登录后才可以回帖 登录 | 注册会员

本版积分规则

中国磨床技术论坛
论 坛 声 明 郑重声明:本论坛属技术交流,非盈利性论坛。本论坛言论纯属发表者个人意见,与“中国磨削技术论坛”立场无关。 涉及政治言论一律删除,请所有会员注意.论坛资源由会员从网上收集整理所得,版权属于原作者. 论坛所有资源是进行学习和科研测试之用,请在下载后24小时删除, 本站出于学习和科研的目的进行交流和讨论,如有侵犯原作者的版权, 请来信告知,我们将立即做出整改,并给予相应的答复,谢谢合作!

中国磨削网

QQ|Archiver|手机版|小黑屋|磨削技术网 ( 苏ICP备12056899号-1 )

GMT+8, 2025-11-27 01:14 , Processed in 0.118321 second(s), 26 queries .

Powered by Discuz! X3.5

© 2001-2025 Discuz! Team.

快速回复 返回顶部 返回列表