找回密码
 注册会员

QQ登录

只需一步,快速开始

扫一扫,访问微社区

查看: 418|回复: 13

这个东西有点难,有会的朋友吗

[复制链接]
发表于 2014-1-25 11:49:54 | 显示全部楼层 |阅读模式

马上注册,结交更多好友,享用更多功能,让你轻松玩转磨削论坛

您需要 登录 才可以下载或查看,没有账号?注册会员

×
本帖最后由 panxia008 于 2014-1-26 11:51 编辑
# c5 f7 ?& ]" |9 A4 v# n9 [1 y# h% a1 V& F. f. b" S
上海地区会的朋友说下,能帮忙做的话感激的,价格说下。。
# A/ \, s* r' z3 w/ u
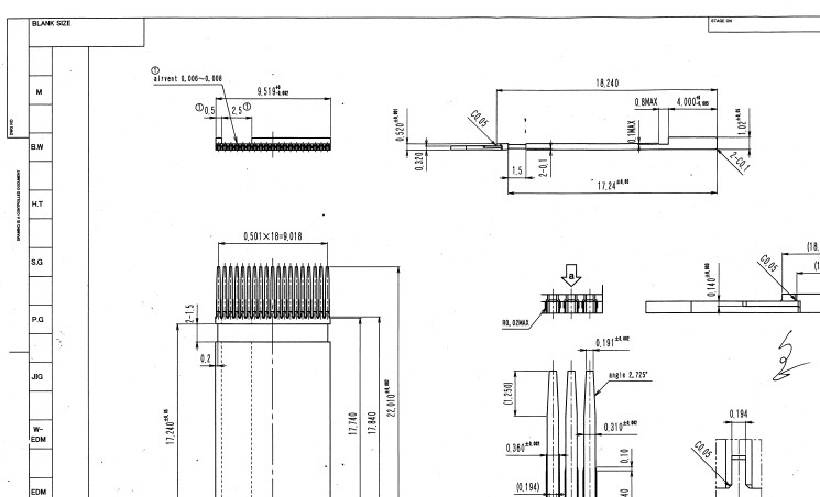
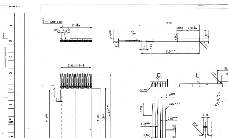
磨床图片.jpg

21-1114712-10200.pdf

294.74 KB, 下载次数: 10, 下载积分: 威望 -2 点, 铜钱 -1 枚, 贡献值 -1 点

10件

发表于 2014-1-25 13:53:41 | 显示全部楼层
下载,扣积分????????????
 楼主| 发表于 2014-1-25 16:25:49 | 显示全部楼层
我不知道.............................
 楼主| 发表于 2014-1-26 11:50:50 | 显示全部楼层
0 }- @2 r4 N% Q! Y
2 X  z1 k, F8 G: i  y8 q, Q
本帖最后由 panxia008 于 2014-1-26 11:45 编辑
$ x4 L! J, u* _( x: m8 Q
* R( W" Y- z% C6 B) ]: L# J' C& b, q! W4 S2 l. x
说好今天来的,价格谈好,做出来往返车费报销,然后回老家的火车票也报销。食宿宾馆我都安排好了,结果今天说不来了,,,,哎,网上的东西不能信,人不能信,本以为磨床的兄弟能信点,结果,现在可好,连磨床中人也不能信。。。。。。。。。。。。。钱是小事,信誉最重要,,,,昆
 楼主| 发表于 2014-2-5 12:58:15 | 显示全部楼层
过年前,苏州来了个兄弟,,,干了2天,,一个主体,,在修斜度曹的时候,,可能不顺,,,所以我让他先走,小年夜了都,,,今天我主体测量了下,高度公差0.002的小了0.004-0.006,,挂台公差0.005的,现在-0.009-0.012,,报废,,哎,,,,,,我是千分表推的
发表于 2014-2-7 13:38:42 | 显示全部楼层
兄弟什么单呀,精度要求这么高,挂台还要那么准
% S1 Z( J9 V3 t: T1 m& f) j- b6 [" A
发表于 2014-2-7 13:48:42 | 显示全部楼层
东西做好了没。
 楼主| 发表于 2014-2-7 17:19:52 | 显示全部楼层
昆山来了个师傅,大元师傅,呵呵,,现在干呢,,,,,
发表于 2014-2-18 21:24:16 | 显示全部楼层
对于我来说有难度哦!齿上的斜度难弄。

点评

齿上的斜度可以磨塞片塞进去磨,那样不和加工实体工件一样了吗? 这个工件只要方法适当没那么难做的!  详情 回复 发表于 2014-2-20 21:46
发表于 2014-2-20 21:46:06 | 显示全部楼层
jgh1434 发表于 2014-2-18 21:24
6 U  w8 t4 v& U  e对于我来说有难度哦!齿上的斜度难弄。
: o: b5 I' Q6 R  V8 s$ ]
齿上的斜度可以磨塞片塞进去磨,那样不和加工实体工件一样了吗? 这个工件只要方法适当没那么难做的!' x- [) k4 W' V/ L7 O* N6 ?

点评

成型砂轮的时候难受啊!我们这里没有那种定位的角度器。不注意砂轮9报废了。  详情 回复 发表于 2014-3-2 16:53
 楼主| 发表于 2014-2-26 19:59:43 | 显示全部楼层
已经做好了,,大元师傅做的,呵呵,昆山的,,,,,,耗时2个班
发表于 2014-3-2 16:53:12 | 显示全部楼层
天道▂▂酬勤 发表于 2014-2-20 21:46
# _9 g5 o- K. K  H5 _5 V4 i) z齿上的斜度可以磨塞片塞进去磨,那样不和加工实体工件一样了吗? 这个工件只要方法适当没那么难做的!

$ K2 B- f* l# z成型砂轮的时候难受啊!我们这里没有那种定位的角度器。不注意砂轮9报废了。
5 F9 d  O+ S- H  z5 C1 n
发表于 2014-3-9 23:35:12 | 显示全部楼层
是不是QQ群里的那个大元
发表于 2018-3-28 19:39:26 | 显示全部楼层
不明觉厉                    
您需要登录后才可以回帖 登录 | 注册会员

本版积分规则

中国磨床技术论坛
论 坛 声 明 郑重声明:本论坛属技术交流,非盈利性论坛。本论坛言论纯属发表者个人意见,与“中国磨削技术论坛”立场无关。 涉及政治言论一律删除,请所有会员注意.论坛资源由会员从网上收集整理所得,版权属于原作者. 论坛所有资源是进行学习和科研测试之用,请在下载后24小时删除, 本站出于学习和科研的目的进行交流和讨论,如有侵犯原作者的版权, 请来信告知,我们将立即做出整改,并给予相应的答复,谢谢合作!

中国磨削网

QQ|Archiver|手机版|小黑屋|磨削技术网 ( 苏ICP备12056899号-1 )

GMT+8, 2025-10-3 10:37 , Processed in 0.249568 second(s), 35 queries .

Powered by Discuz! X3.5

© 2001-2025 Discuz! Team.

快速回复 返回顶部 返回列表