找回密码
 注册会员

QQ登录

只需一步,快速开始

扫一扫,访问微社区

楼主: 七月的风

[求助] 磨床头架轴承问题

  [复制链接]
发表于 2014-9-5 21:21:06 | 显示全部楼层
关于安装方式,楼主拆原机的时候没留意啊?
1 U0 Y7 x; W  z2 L轴承上做的记号,是给配对用的。买的时候,配好对的轴承是拴在一起的,或者在同一个包装盒里。& z3 d0 ]+ z& F3 Q2 \; N0 f
两个轴承间如何有隔套,那么内外隔套是有高度差的。轴承厂会明确给出这个差值。
8 m5 F5 w: d2 c6 b3 Y7 l4 A7 n

点评

没见过轴承厂给出隔套的高度差。 一般都是配研,用工装组装后测量预紧力。 或者放上一个隔套,测量另一隔套的尺寸,然后配研。  详情 回复 发表于 2014-9-6 07:28
发表于 2014-9-6 07:28:11 | 显示全部楼层
ywjianghu 发表于 2014-9-5 21:21. S0 P$ ~3 y4 T1 O
关于安装方式,楼主拆原机的时候没留意啊?
- G; [0 L" Y/ Q# H, T轴承上做的记号,是给配对用的。买的时候,配好对的轴承是拴在 ...
% H0 @) s; ^  W" ]" ?0 J/ m
没见过轴承厂给出隔套的高度差。
& R6 z" X4 ]; [% }! V一般都是配研,用工装组装后测量预紧力。
, ~8 C) x+ {$ C- {4 D7 G3 e或者放上一个隔套,测量另一隔套的尺寸,然后配研。
$ T2 ^* P7 l1 }+ Y* {

点评

你好! 能否介绍一下这里测量预紧力的方法?  详情 回复 发表于 2014-9-7 21:25
发表于 2014-9-7 21:25:24 | 显示全部楼层
zxq0220 发表于 2014-9-6 07:28! F. C8 a+ |1 r: |4 d
没见过轴承厂给出隔套的高度差。, H( H: C( O: n+ A$ P# c4 Z8 c+ ~) Q! W
一般都是配研,用工装组装后测量预紧力。
/ V1 I. t8 G9 S' D或者放上一个隔套,测量另一 ...

2 X; Y9 o( {( G$ J2 r0 q你好!: H% x$ S4 N/ R; M3 G8 k3 M7 ~
能否介绍一下这里测量预紧力的方法?
% f1 Z: S7 q7 r5 t: S  R4 g& K( g6 y
发表于 2014-9-8 08:23:56 | 显示全部楼层
轴承工艺.pdf (21.18 KB, 下载次数: 37)

点评

谢谢你上传资料! 这个资料是某个企业的内部作业指导? 有几点不明白: 1,内圈施压,应该施加多大压力? 2,测量内圈尺寸,意思是测量内圈的间隔距离吧? 这个间隔距离比较难测量,因为有外圈挡着,只能从轴承  详情 回复 发表于 2014-9-9 20:16
发表于 2014-9-9 09:31:41 | 显示全部楼层
头件拨盘轴承,如果是两个应该背靠背装配2 x) ~: W6 E' R8 @. v/ P5 I
发表于 2014-9-9 18:50:07 | 显示全部楼层
主轴可以p4级别的轴承,配好对的。贵点值得。
' H3 Z# }  C3 Q
$ L* T  V2 a; ?背对背还是面对面根据自己设备使用情况:
2 c" i, U! q+ `0 ~( J  E
8 A& |. x2 N. ?8 w6 G9 }8 Y8 ^轴向受力大还是径向受力大,参考相关资料。
  \+ `8 P, {" @
0 j4 h( N7 R2 Z7 v+ c: L; X装配的主轴本身精度要高,两轴承位的同心度和圆度须在0.001mm以内。
8 w  c- Q" ~5 ]9 \7 j3 N0 Q# u$ s; K9 B* J  Z$ }8 b" S, V7 z
轴承润滑油脂适当,不可太多,影响散热。! f7 d$ \& z5 ^' E* V% p# c6 @
. q$ v8 Z. \7 B6 t
装配环境必须清洁干净无尘。9 T3 w8 X) ?5 F8 }! G1 u
1 O! f  i$ K) M- ^
看自身主轴结构,一般有弹簧消除间隙。
0 l; W" t, j& X$ c; E: [) _$ z: Y' Y- K! q/ x7 e- ^$ i7 b; K
轴向有串动空间,因弹簧有力,所以轴不会串动。- S0 [# f* w3 i2 s0 x( `% i$ Z

/ R3 r9 m+ f$ O, Z, @2 B1 q: w同时,主轴发热时,轴向串动空间可以让轴受热不受限,不卡死。% D/ u' S# D: }6 ^. y  N2 S
  m, s0 k, I* x: h/ ~+ U" N7 f
装配好先低速运转(如果有低速度)1-2小时。可以发热后稳定。
& y: _; q/ q! C/ B5 L# L$ y7 J% t) p; m- c  P3 w
高速运转0.5小时。可以发热后稳定。
0 m4 ~/ t( A1 M7 n& o5 W, l& Z  X- x7 I
所有发热不可高于摄氏30°7 ~  z- ~! u7 i% z2 h
8 k& F! ^7 a% r. d: Q! T6 f
听声音,要平稳无噪声。* U. E9 B* h4 x7 c
, ^/ m! t7 S3 g# f  D& S! m
调试完毕,无异样,5 H& w( `/ f3 V9 x2 E

# x: S$ L( P# h1 B# S4 q8 J& M打表测主轴工作位精度,跳动小于0.001mm。
3 E: A. F( N, a1 L$ E
- k% L/ j0 e8 C, ^4 w3 _- l) G, t合格。成功了!
8 I. B0 Q& y3 m- l6 N$ r' a1 U8 m$ [3 N. q/ P! ?5 R9 e( u
如有发热烫手和噪音尖叫,立即停机。
( y% f) b1 H' z# ]5 u4 w+ W6 }# V5 M. b& r
重新拆解,检测各个零部件,总有地方出了问题。
& a: M9 H" G. I( f: j. Q  x2 j( R9 v+ S1 C# J
一回生二回熟。
" C- Z; m5 l* H( q
3 N, |' @  g' P9 u- b$ Y最后被你降服。. N& [1 Q( K0 l+ ^) \6 k% o  f/ a

6 o! @* e8 J$ g6 v8 O7 V2 ]. [
) w( u  X1 Z7 L6 D- U# |4 @1 }; |* Z9 K3 L  W# D& o# w, w
0 @9 @/ x" _6 t$ `
* Q: z8 m5 \8 v8 r3 e
+ w! G7 ]  e& j2 i8 V& W
; b+ g- p, _) G; M. B  B# V( f
9 |: @' `6 z& \3 O: ~) e. u

评分

参与人数 1威望 +25 收起 理由
研磨者 + 25 很给力!

查看全部评分

发表于 2014-9-9 20:16:37 | 显示全部楼层
8 `- g8 y/ r# B! R2 D
谢谢你上传资料!. R4 f" s" t9 G' e% G/ x
这个资料是某个企业的内部作业指导?
% Y! |( O9 [0 W* J6 `0 S3 _; _7 u. G有几点不明白:
: v1 k' _9 Z. y6 X* A: V$ o( b$ Q2 c1,内圈施压,应该施加多大压力?
+ |3 A1 B% f: D$ p1 B2,测量内圈尺寸,意思是测量内圈的间隔距离吧?
; Z7 `" N" h# }这个间隔距离比较难测量,因为有外圈挡着,只能从轴承内孔中伸进量块去,要测量准,难。1 p: D  P: I' I* \! w
3,用测量摩擦力的方法作为检验标准,似乎不是那么合适。因为摩擦力随接触面的表面光洁度变化,和接触面的润滑状态还有关。$ C" e: l7 W* @8 b- Z, }: d$ g
纯粹属于想象,请指点。% C# f& D5 D0 @  r! C* l" L

点评

内圈施压只要能消除轴承间隙就行,一般用手压紧即可,但要注意保持平衡,不要歪斜。 如果内圈测量不方便,可以将轴承方向反向摆放,在轴承外圈施压,测量轴承外圈的间隔。不过误差可能会大。 测量只是确定隔环需要  详情 回复 发表于 2014-9-10 07:48
测量的是内圈和外圈之间的高度差。 这种规格的轴承施加的力一般在200N~400N左右,可以多试验几次得出确定值。因为轴承的游隙消除后再施加有限的力不会有明显变化。 可以做一个小工装,在接触内圈的地方挖几个洞。  发表于 2014-9-9 23:24
发表于 2014-9-10 07:48:33 | 显示全部楼层
ywjianghu 发表于 2014-9-9 20:16) m; y4 \* h/ k& E: O6 K" T; R
谢谢你上传资料!
, g& O. a3 \, j. h$ ?这个资料是某个企业的内部作业指导?" [" I) i' s0 V/ N2 t% r( m: k
有几点不明白:

, f( u3 f$ K" a  z5 M内圈施压只要能消除轴承间隙就行,一般用手压紧即可,但要注意保持平衡,不要歪斜。2 d1 d8 r2 m1 A
如果内圈测量不方便,可以将轴承方向反向摆放,在轴承外圈施压,测量轴承外圈的间隔。不过误差可能会大。
) _! X( }) p2 F- s% a' X" b2 @测量只是确定隔环需要研磨的尺寸,有误差可在后面测量预紧力时再调整0 ~3 n7 `  G6 Y3 `- Z4 `
因隔环两端面是研磨表面,轴承端面也是磨削表面,所以摩擦力是一定的,不用考虑太多。# L2 e7 i! Z) b+ M  M
发表于 2014-9-10 08:09:44 | 显示全部楼层
一对p4的轴承,折腾来折腾去,哐当,完蛋了!不信都买一对来试试看!呵呵!
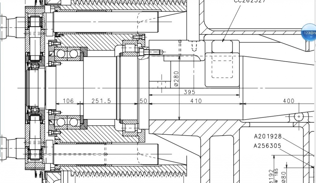
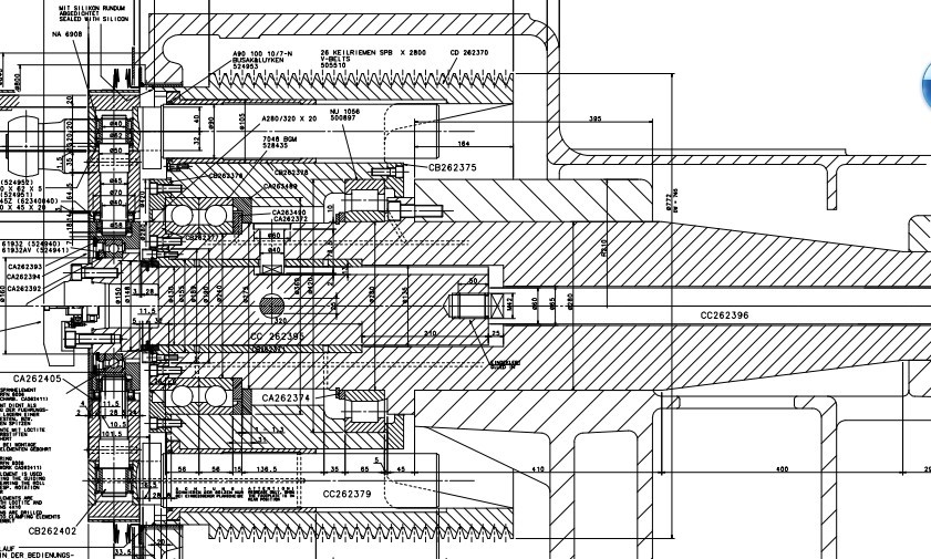
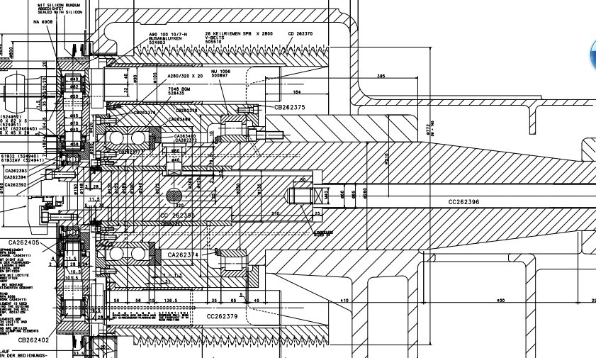
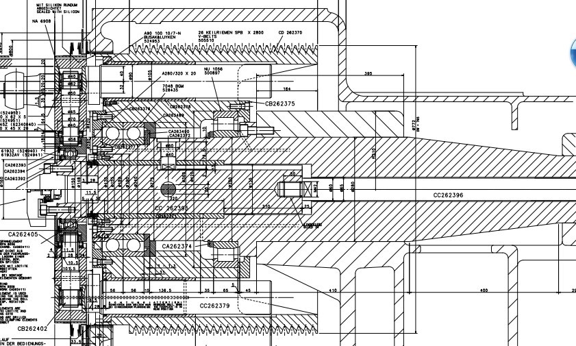
发表于 2014-9-12 16:06:33 | 显示全部楼层
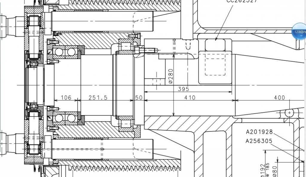
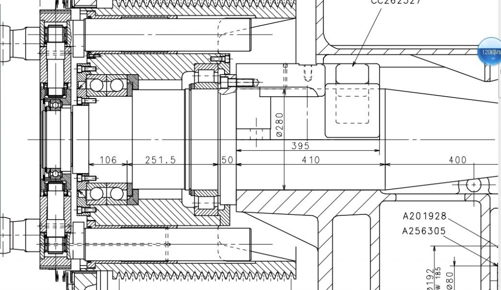
瓦德里希轧辊磨床头架图纸
1.jpg
QQ图片20140912160938.jpg
发表于 2014-9-19 15:52:17 | 显示全部楼层
找专业人来装配。顺道也可以学习下,主轴轴承装配不好会发热哟
发表于 2014-9-23 10:50:04 | 显示全部楼层
前面用P4后面用P5就可以了
发表于 2014-9-23 23:20:43 | 显示全部楼层
我发现真好多人才………。…大哥呀这种是叫推力轴承呀。不要装错了呀你买回时不是已捆好的吗。要同方向呀。不要弄错了。这种轴承有ABCD型号的。不同的有不同的精度。安装时一定记得不要打敲呀。要轻推进去。力要平行。不能硬来呀
发表于 2014-9-27 08:05:37 | 显示全部楼层
怎么样拆就怎么样装
发表于 2014-10-14 13:36:09 | 显示全部楼层
学习一下拿分走人呵呵,楼下继续!
发表于 2014-10-31 12:18:59 | 显示全部楼层
高精度轴承精度检测、预紧调整,都是有精密工装的,讲的是安装后精度微米级,预紧调整也几乎是微米级的(重载可以是丝级的),玩到几万转,一对轴承就上千啊。慎重慎重!比如外圆磨头架,转速低,但精度要求高,重载预紧有点过,轻载又不够,所以常见的是中载。至于预紧对轴承精度的影响,都百度一下吧。
( ~& D) q* A4 P. R9 f。。。。。。。。。。。。。。太多了,不说了。一只微米表加平板是在最恶劣状况下玩精密轴承是起码条件。都读书去,书上都有!
您需要登录后才可以回帖 登录 | 注册会员

本版积分规则

中国磨床技术论坛
论 坛 声 明 郑重声明:本论坛属技术交流,非盈利性论坛。本论坛言论纯属发表者个人意见,与“中国磨削技术论坛”立场无关。 涉及政治言论一律删除,请所有会员注意.论坛资源由会员从网上收集整理所得,版权属于原作者. 论坛所有资源是进行学习和科研测试之用,请在下载后24小时删除, 本站出于学习和科研的目的进行交流和讨论,如有侵犯原作者的版权, 请来信告知,我们将立即做出整改,并给予相应的答复,谢谢合作!

中国磨削网

QQ|Archiver|手机版|小黑屋|磨削技术网 ( 苏ICP备12056899号-1 )

GMT+8, 2026-4-1 07:52 , Processed in 0.154334 second(s), 21 queries .

Powered by Discuz! X3.5

© 2001-2025 Discuz! Team.

快速回复 返回顶部 返回列表